ケーシー病院の拡張
チェンジ・トラッキング - ケイシー病院の、拡張プロジェクトのキーポイント
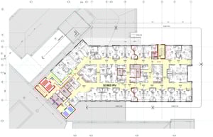
ケイシー病院拡張プロジェクトは、1億4,000万ドルをかけて、
新しい多層階のタワー棟と増築棟を建設し、さらに既存の病院を、改修するもので、当初は、プレナリー・ヘルス・コンソーシアムによるPPPとして2004年に建設さ れました。主な新施設は、4つの、新しい手術室、128の新しい多床式ベッド、12床の新しい集中治療室、12床の日帰り手術室、モナシュ大学のための、新しい教育ハブ施設などです。
プロジェクト規模16,000m2のCHEPは、STHが、dRofusプラット・フォームを活用した、最初の大規模プロジェクトでした。パイロット・プロジェクトとして、これはSTH社内のプロセス、レポート、標準ドキュメントの全面的な見直しを、大いに促しました。
dRofusソフトウェアは、当初、アコモデーション・スケジュールに関する概要の変更を検証し、追跡するために使用されました。dRofusはプロジェクト終了時だけでなく、設計プロセス中も情報を追跡し、最新の状態に保つライブ監査証跡となりました。クラウドベースの解決策であるため、チームは、リアルタイムの、データを得ることができ、これは大きな前進でした。
部屋データシート、アコモデーション・スケジュール、アイテムの管理スケジュール、仕上げ、家具、ドア・窓のスケジュールなど、プロジェクト・レポートはソフトウェアから非常に迅速かつ、効率的に作成されました。
デリバリーを大いに助けた重要な機能は、ログによる変更追跡機能でした。これは、何が、どのくらい変更され、誰が、変更したかについての情報を提供します。
部屋テンプレートは、ワークフローと、ドキュメント作成手順を、スピードアップするために広く使用しました。
部屋データシートは、プロジェクトにとって重要であり、クライアントや設計要件を、把握する従来の方法だけでなく、各部屋に、サインオフするためのツールとして、独立した、認証機関によるチェックリストとして使用されるなど、多目的に使用されます。

dRofusのクライアントであるSTHは、データの所有者ですが、他のプロジェクト・パートナーたちも、一元化されたデータベース内の情報にアクセスし、入力し、活用することができました。
これには、設計段階のノーマン・ディズニー・ヤング (NDY)、
様々な、エンジニアリングの下請け業者 (機械、電気、油圧)、製品メーカーなどが含まれます。
プロジェクト・マネジャーと建設業者には、読み取り専用のアクセスが提供され、情報を確認できるほか、ログ・レポートを通じて、完全な監査証跡、履歴、変更理由を確認することができました。
異なる関係者に、異なる責任範囲を、割り当てることができたことは、主契約者であるワトパックを大いに支援しました。彼らは、dRofusが、唯一の真実の情報源であることを、確実にするために、データを入力すべき人々を監視し異議を唱えることができました。





“ 他の利害関係者が、管理された方法で、私たちのデータベースに直接データを入力できるという事実は、
ゲームチェンジャーでした。これにより、彼らの入力を示す統合レポートやスケジュールを作成し、
必要に応じてデータを、Revitに同期させることができました。”
“ dRofusは、優れたQAツールでした。dRofusのデータベースをRevitにリンクさせることで、
図面を描くべき内容を検証し、変更をログで追跡することができました。”
“ すべての関係者がログインし、最新のデータにライブでアクセスできるようになったことで、
問い合わせや、RFI (情報提供依頼書)の数が減少しました!”